Address: 88 Veres Street
City: Fairfield
State: CT
ZIP:
MLS #: 24151556
Style: Colonial
Year Built: 1919
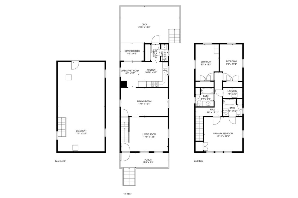
Square Feet: 1,386 Above Grade (+612 in LL)
Bedrooms: 3
Bathrooms: 2 Full, 1 Partial
Fireplace:
Garage: Off Street, Paved
Basement: Full with Walk-Out
Additional Features:
The location is truly unbeatable — just steps to the beach and water, and an easy stroll to town, shops, restaurants, the train station, farmers market, and local parks.
Enjoy peaceful mornings on the sunny front porch, casual days working from the eat-in kitchen study nook, and unforgettable gatherings on the expansive rear deck, designed to accommodate large-scale entertaining. The private backyard offers space for play, relaxation, and outdoor living.
The second level features a stunning primary suite with vaulted ceilings, abundant natural light, hardwood floors, and a walk-in closet. A hallway leads to two additional bedrooms, a full bath, and a convenient laundry room. The lower level provides a dedicated workspace and exceptional storage.
Live a quiet, convenient, and connected lifestyle in highly desirable Fairfield, CT — surrounded by million-dollar-plus homes and timeless coastal appeal.
Seller is open to offering a Buyer Broker Compensation.



























