Address: 5060 Main Street
City: Stratford
State: CT
ZIP:
MLS #: 24125790
Style: Colonial, Cntemporary
Year Built: 1988
Square Feet: 4,643
Bedrooms: 3
Bathrooms: 3 Full, 1 Partial
Fireplace: 4
Garage: 2 Car Attached
Basement:
Additional Features:
Welcome to this stunning waterfront retreat, perfectly designed for both relaxation and entertaining. Nestled along the scenic Housatonic River with panoramic views up and down the waterway, this exceptional home offers the perfect blend of luxury, comfort, and functionality. Featuring 3 spacious bedrooms, 3 full bathrooms, and 1 half bath, this thoughtfully designed residence also includes a finishable bonus room above the 2-car garage, ideal for a guest suite, studio, or private office. Elevator access to all three levels ensures convenience and peace of mind. As you arrive, a beautiful stone wall frames the property, and gated entry leads to a charming paver stone driveway that sets the tone for what lies beyond.
Main Floor:
The heart of the home offers a sun-drenched living room with a cozy fireplace and sliding doors that open to a deck overlooking the pool and river. The kitchen, dining room, family room, solarium, and home office all showcase stunning water views. A large storage closet provides added convenience.
Lower Level:
An entertainer’s dream, the lower level features an additional kitchen area, a floor-to-ceiling stone fireplace, and a full spa experience with a sauna, steam room, and Jacuzzi tub. Step outside to your private pool and hot tub, or head down to the dock for direct river access. Two bedrooms, two full baths, and a gym round out this level—perfect for hosting guests or enjoying multigenerational living.
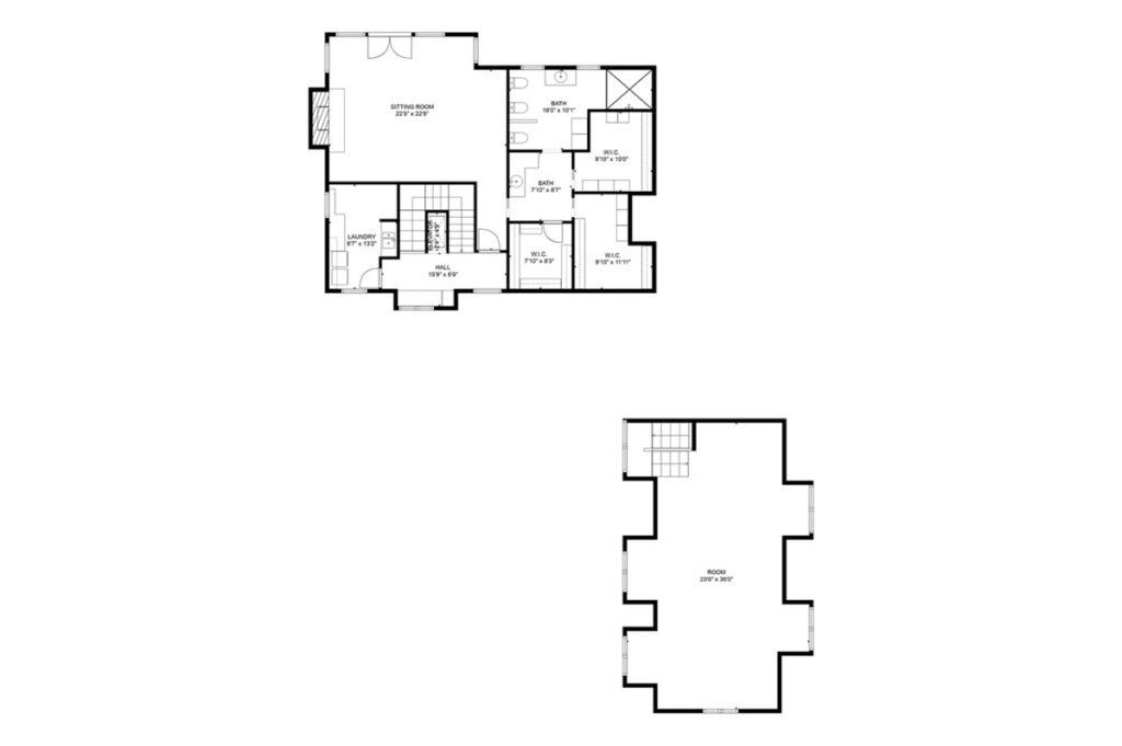
Upper Level:
Dedicated entirely to the luxurious primary suite, the upper level offers ultimate privacy and tranquility. Enjoy two walk-in closets, a cedar closet, recessed lighting, a romantic fireplace, and your own private balcony with breathtaking views. The spacious en-suite bathroom is a true retreat.
This home is a rare offering for those seeking unmatched waterfront living with every amenity. Whether you’re hosting a summer soirée by the pool, enjoying cozy nights by the fire, or soaking in the river views from nearly every room, this property is sure to impress.
Offering a Buyer Broker Compensation of 2% of the Sale Price.







































